logo
  
VI| EN
30

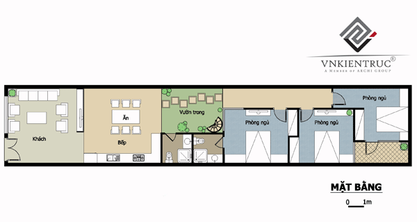
Xây nhà trệt trên diện tích 5m x 26m

Cập nhật lúc: 6/7/2011 9:49:00 AM
Xây nhà trệt trên diện tích 5m x 26m - Em dự định xây căn nhà trệt trên mảnh đất có diện tích 5m x 26m. Gồm phòng khách, 3 phòng ngủ, một nhà bếp và nhà vệ sinh với 8 cửa sổ, cửa chính và cửa cổng.
 Em dự định xây căn nhà trệt trên mảnh đất có diện tích 5m x 26m. Gồm phòng khách, 3 phòng ngủ, một nhà bếp và nhà vệ sinh với 8 cửa sổ, cửa chính và cửa cổng. 
Xin cho em hỏi chi phí của căn nhà này là khoảng bao nhiêu và giúp em tư vấn thiết kế để có một căn nhà đẹp.
 
Tư vấn:
 
Với câu hỏi của bạn, chúng tôi xin được tư vấn như sau:
Xây nhà trệt trên diện tích 5m x 26m 
 
Toàn bộ diện tích sử dụng trong nhà đều được bố trí trên 1 tầng bao gồm phòng khách, bếp, ăn, 3 phòng ngủ, 1 vệ sinh chung và tất cả được chia thành 3 khu rõ ràng.
Khu động bao gồm phòng khách, ăn và bếp.

Phòng khách và bếp có thể ngăn bằng vách kính nhẹ hoặc làm chắn gỗ để tạo cảm giác kín đáo và thoáng.
Giao thông được chuyển hướng từ phòng bếp mà vẫn mạch lạc và không cản trở các sinh hoạt khác.
Khu chuyển tiếp từ không gian chung đến không gian riêng là giếng trời lấy gió, sáng, đồng thời thêm sinh động cho phòng bếp và không gian của toàn căn nhà.
Lấy thoáng cho nhà bằng mái kính hoặc cửa trên diện tường cao của phần giếng trời.
Khu tĩnh gồm các phòng ngủ.
Khoảng sân vườn nhỏ sâu bên trong cùng tạo thông thoáng cho cả hai phòng ngủ và có thể tận dụng làm sân phơi.
Phòng ngủ còn lại cũng thoáng đãng nhờ mở ra khu giếng trời.
Trong trường hợp cần thiết có thể tạo một sân phơi phía trên nhờ  thang xoắn đi lên từ giếng trời.
Chi phí có thể dao động từ 350 triệu đến 400 triệu phụ thuộc vào sự lựa chọn các thiết bị xây dựng  của chủ nhà.
 
Tư vấn thiết kế: KTS Đặng Thị Hồng Ngát -

 
ĐT: 08 33676688

Email: contact@noithatvang.net

Ngày nay với một thị trường tràn ngập hàng hoá và dịch vụ, để biết rõ mình muốn gì cho không gian làm việc của công ty bạn và làm thế nào để phối hợp tất cả các yếu tố vào một tổng thể thống nhất ngày càng trở nên phức tạp hơn.

Bước vào giai đoạn thực thi, vấn đề không còn là cung cấp những sản phẩm riêng lẻ mà đó là tích hợp những sản phẩm phù hợp đúng thời gian theo một phương thức phù hợp để đảm bảo rằng chúng ta sẽ đến đích mà chúng ta dự định.

Hướng tới mục tiêu trở thành một trong trong những thương hiệu hàng đầu trong lĩnh vực thiết kế nội thất. Nội thất vàng cam kết làm hài lòng những khách hàng khó tính nhất.

 (Sản phẩm của Nội Thất Vàng)

Dịch vụ cung cấp

 

·        Thiết kế nội thất văn phòng

·        Thiết kế và thi công văn phòng

·        Trang trí nội thất

 

·     Thi công lắp đặt vách kính

·     Thi công trần vách thạch cao

·     Thi công văn phòng

 

·      Lắp đặt tổng đài điện thoại

·      Lắp đặt hệ thống mạng Lan

·      Lắp đặt hệ thống điện nhẹ

 
 
Tel: 024 33676688 - Hotline: 08 33676688
 
icon
Sản phẩm khuyến mại
Sản phẩm bán chạy
Bài viết liên quan
Thiết kế nội thất xứng tầm cho ngôi nhà của bạn  Thiết kế nội thất xứng tầm cho ngôi nhà của bạn
Với không ít người, quan niệm về một cuộc sống sang trọng, đẳng cấp giờ đây không gói gọn trong những chiếc túi xách thời trang hay đôi giày sành điệu, mà dựa trên chất lượng sống, không gian bạn tận hưởng mỗi ngày.
Thiết kế không gian bếp 1 cách sang trọng Thiết kế không gian bếp 1 cách sang trọng
Bếp là một không gian rất quan trọng trong ngôi nhà, là nơi các thành viên trong gia đình có thể tương tác, là nơi để cha mẹ, con cái, ông bà gần nhau hơn. Theo một cách hiểu nào đấy thì không gian bếp chính là nơi ươm mầm và nuôi dưỡng nhân cách và văn hóa cho các thành viên trong gia đình.
Không gian xanh trong nhà phố Không gian xanh trong nhà phố
Không gian xanh thường được tối giản hoặc không có trong các ngôi nhà, căn hộ có diện tích giới hạn.
Thiết kế giếng trời cho phòng khách Thiết kế giếng trời cho phòng khách
Giếng trời là một phần quen thuộc trong ngôi nhà, nhất là với những căn nhà phố thường không có nhiều mặt thoáng.
Thiết kế phòng trẻ em theo phong cách Zalf Thiết kế phòng trẻ em theo phong cách Zalf
Zalf là một công ty Ý sản xuất một loạt các đồ nội thất cho sinh hoạt, phòng ngủ, văn phòng nhà và không gian tuổi teen. Các giải pháp của họ cho phòng thiếu niên ngay lập tức nắm bắt sự chú ý của người xem với các màu sắc sống động. Bạn hãy xem các thiết kế phòng trẻ em theo phong cách Zalf dưới đây:
Dự án đã triển khai
Thiết kế và thi công nội thất văn phòng Bridgestone
Thiết kế và thi công nội thất văn phòng Đại Sứ quán Mỹ
Thiết kế và thi công nội thất văn phòng VINACONEX
Thiết kế và thi công nội thất văn phòng ASUS
Thiết kế và thi công nội thất Ngân hàng Nông Nghiệp
Thiết kế và thi công nội thất ngân Hàng VIETINBANK
Thiết kế và thi công nội thất sàn giao dịch chứng khoán KOVA
Thiết kế và thi công nội thất văn phòng Samsung
Thiết kế và thi công nội thất văn phòng công ty VNS
Thiết kế và thi công nội thất cục thuế Vinh
Thiết kế và thi công nội thất văn phòng bảo hiểm hàng không
Thiết kế và thi công nội thất văn phòng công ty DCSD
Thiết kế và thi công nội thất văn phòng công ty Bia Việt Hà
Sản phẩm bạn đã xem
Phong thủy nội thất
Tin nội thất mới nhất
  • Sắc màu quyết định đến phong cách nội thất của văn phòng làm việc
    Một văn phòng với nội thất đẹp sẽ đem đến một không gian hiện đại và sang trọng cho công ty, phản ánh phong cách thẩm mỹ của người thiết kế. Tuy nhiên một điều không phải ai cũng biết, sắc màu của nội thất văn phòng cũng đóng góp phần không nhỏ trong kiến trúc, giúp tạo ấn tượng mạnh đối với khách hàng khi đến với mỗi công ty.
  • Chọn mua ghế văn phòng và những điều cần chú ý
    Một chiếc ghế văn phòng thích hợp sẽ tạo một sự khác biệt đáng kể khiến cơ thể bạn cảm thấy thoải mái trong suốt ngày dài làm việc, giúp đẩy mạnh hiệu quả công việc.
  • Vách ngăn và những lợi ích bất ngờ dành cho văn phòng hiện đại
    Với xu hướng hiện đại hóa nội thất văn phòng làm việc, vách ngăn là ứng dụng mới và được nhiều công ty áp dụng bởi sự tiện lợi đầy chuyên nghiệp mà sản phẩm đem lại.
  • Sắc màu nội thất văn phòng truyền cảm hứng làm việc
    Màu sắc là một trong những hình thức giao tiếp qua hình ảnh, một văn phòng với nội thất màu sắc tươi trẻ sẽ cho người nhìn thấy được sự năng động trong công việc và sự uy tín của công ty.
  • Văn phòng tràn đầy sức sống với cây xanh
    Với áp lực công việc với cường độ cao ngày nay, làm việc trong một văn phòng có cây xanh sẽ giúp người làm việc thư thái hơn.
  • Lựa chọn sàn gỗ công nghiệp cho văn phòng hiện đại
    Theo phong thủy, sàn văn phòng tượng trưng cho móng nhà. Vì vậy sàn nhà bằng phẳng và chắc chắn sẽ đem đến sự sang trọng nơi làm việc, giúp cho sự nghiệp phát triển thuận lợi của công ty.
  • Văn phòng sáng tạo với thiết kế bàn làm việc tổ ong
    Lấy cảm hứng từ những chú ong chăm chỉ, những nhà thiết kế nội thất cực kỳ sáng tạo khi cho ra đời mẫu bàn làm việc văn phòng kiểu tổ ong. Ý tưởng đem đến một sự hiện đại mới mẻ và đem đến đầy hứng thú làm việc.
  • Những mẫu gỗ công nghiệp phổ biến nhất hiện nay
    Trên thị trường nội thất hiện nay, đồ gỗ nhân tạo đang ngày càng lấn át gỗ tự nhiên bởi giá thành rẻ và mẫu mã đẹp, dễ chọn lựa. Sau đây là những mẫu gỗ công nghiệp hiện đang phổ biến nhất hiện nay và đang được người sử dụng tin dùng rộng rãi.
  • Làm việc ứng khởi hơn với nội thất văn phòng hiện đại
    Nội thất văn phòng hiện đại luôn là mục tiêu mỗi công ty hướng tới, hơn nữa nội thất đẹp sẽ truyền cảm hứng tới người làm việc. Đồ nội thất văn phòng cao cấp sẽ quyết định điều đó.
  • Thiết kế nội thất thân thiện với môi trường
    Các vật liệu tự nhiên đang ngày càng được con người sử dụng trong thiết kế nội thất, bởi cảm giác nhẹ nhàng, thân thiện với môi trường mà nó đem lại.
  • Giải pháp nội thất cho căn phòng chật hẹp
    Những căn phòng chật đôi khi khiến bạn gặp khó khăn trong việc lựa chọn đồ nội thất. Sau đây Nội Thất Vàng sẽ giúp bạn “ăn gian” diện tích căn phòng thân yêu.
  • Làm việc hiệu quả hơn với văn phòng tại nhà
    Công việc nhiều khiến cho "dân văn phòng" phải làm việc cường độ cao, thậm chí làm việc ngay khi ở nhà. Vì thế, việc thiết kế một "văn phòng" với những chiếc ghế, chiếc bàn làm việc văn phòng tại nhà là cần thiết đối với người bận rộn.
  • Những yếu tố đơn giản chọn bàn làm việc văn phòng
    Bàn làm việc văn phòng là một thiết bị quan trọng trong mỗi cứ công ty, nó được đặc biệt quan tâm bởi ảnh hưởng nhiều đến chất lượng công việc của mỗi người. Vì thế việc chọn lựa những chiếc bàn cho văn phòng làm việc là việc quan trọng hơn cả và phụ thuộc vào nhiều yếu tố.
  • Nội thất văn phòng với xu hướng mới
    Mọi phát triển của xã hội đều có sự thay đổi, nội thất nói riêng cũng có sự thay đổi để thích nghi với thời đại. Chính vì thế xu hướng nội thất văn phòng luôn có sự dịch chuyển liên tục, đem đến làn gió mới cho người làm việc hiệu quả hơn.
  • Mẹo phong thủy cho ngôi nhà ấm áp mùa đông
    Chỉ cần một vài thay đổi nhỏ về phong thủy, tổ ấm của bạn sẽ thực sự trở thành chốn nghỉ ngơi, thư giãn thoải mái trong mùa đông lạnh lẽo.
logo
PHÂN PHỐI TẠI HÀ NỘI
Địa chỉ: 69 Tố Hữu - Vạn Phúc - Hà Đông - Hà Nội
Nhà số 46 Galaxy 3 - Ngân Hà Vạn Phúc
Email: noithatvang.jsc@gmail.com 
Tel: 024 33676688 - Mobile: 08 33676688

PHÂN PHỐI TẠI HỒ CHÍ MINH
Địa chỉ: Khu chế xuất Linh Trung - Thủ Đức - Hồ Chí Minh
Hotline: 0915 294594

CÔNG TY CỔ PHẦN NỘI THẤT VÀNG
Địa chỉ: B-TT01-46, Khu nhà ở Ngân Hà Vạn Phúc, Phường Vạn Phúc, Quận Hà Đông, Thành phố Hà Nội, Việt Nam
MST: 0104294594 - Do sở KHĐT TP Hà Nội cấp ngày 10/12/2009
 
Kết nối:
Copyright 2009-2013 Noithatvang.net, All rights reserved Nội thất Vàng Giữ bản quyền nội dung trên website này
icon yahoo icon yahoo icon yahoo icon yahoo icon yahoo icon yahoo icon yahoo